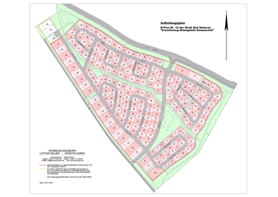
Bad Doberan "Erweiterung Wohngebiet Kammerhof" - B-Plan Nr. 12
Übersichtskarte
Aufteilungsplan
Lage:
Nördlich der Stadt Bad Doberan im Landkreis Rostock
Planungsgrundlage:
Bauplätze:
insgesamt ca. 260
Rund 165 Bauplätze sind bereits ins Liegenschaftskataster übernommen.
Für weitere 95 Bauplätze liegt ein Parzellierungsvorschlag vor.
Ansprechpartner:
Vermessung
Vermessungsbüro Bauer und Siwek
Herr Drochner
Telefon: 03841 / 28 32 00
info@vermessung-bs.de
Umlegung
Vermessungsbüro Bauer und Siwek
Herr Harnack
Telefon: 03841 / 40 5 91
info@vermessung-bs.de
Verkauf
Ostseewohnpark - Wohngebiet "Kammerhof" (direkter Link zur Vermarktung)


